|
|
Descriptions:
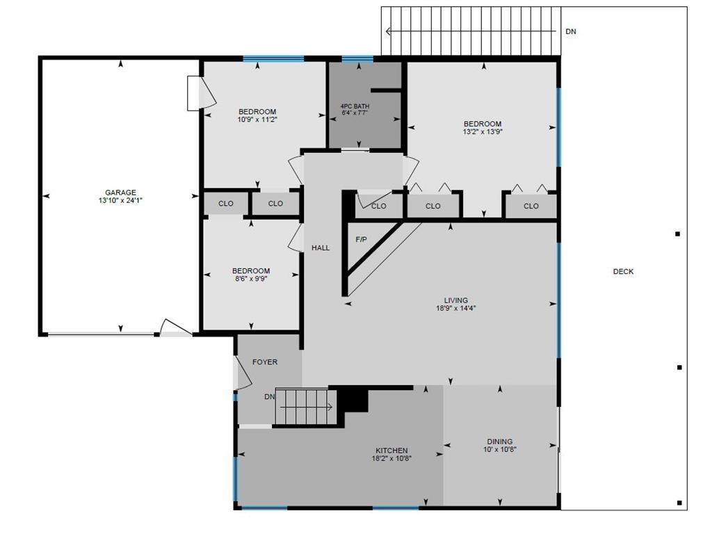
WE'RE BACK AND BETTER THAN EVER!!! NEW RETAINING WALL & SANITARY LINE!!! Tucked away on a massive, secluded pie-shaped lot, this remarkable home offers tranquility, space, and unforgettable outdoor living. The newly updated yard is both peaceful and private, while the upper deck takes full advantage of the lot’s unique elevation, offering sweeping panoramic views through sleek glass railings and covered by a timber pergola with awning. Inside, the open-concept main level has rich hardwood and cork flooring, and features a spacious living room with a corner wood-burning fireplace (with gas log lighter) and elegant decorative ceilings. The large walk-through kitchen boasts granite counters, stainless steel appliances, a coffee/wine bar, and breakfast bar—flowing seamlessly into the dining room and out to the upper deck. The lower level impresses with soaring 10' ceilings, easy maintenance tile flooring, and flexible recreation and family room areas. With six bedrooms, this home offers incredible versatility for families, guests, or work/school from home. Entertain or relax on the walk-out patio complete with built-in swing set and terraced gardens. The outdoor living continues on the rooftop patio above the oversized double detached garage (24'x24')—perfect for a greenhouse, lounge, or play area. A second, extra-deep single garage (14'x24') is attached at the front of the home. With countless thoughtful upgrades and a perfect blend of character and modern function, this one-of-a-kind property is ready to impress.
|
|
| Status: |
|
Active
|
|
| Includes: |
|
N/A |
|
|
|
|
|
| Site Influences: |
| Back Lane, Back Yard, Garden, Landscaped, Lawn, Low Maintenance Landscape, Many Trees, Pie Shaped Lot, Secluded, See Remarks, Sloped Down, Views |
|
| Legal Description: |
| ACCESS Legal Description |
|
| Location & Listing Info: |
|
|
| Neighbourhood: |
Cambrian Heights
|
|
| Lot Size: |
0.15
sq.ft.
|
| Lot Shape: |
Back Lane,Back Yard,Garden,Landscaped,Lawn,Low Maintenance Landscape,Many Trees,Pie Shaped Lot,Secluded,See Remarks,Sloped Down,Views |
|
|
|
|
|
| Property Info: |
|
| Property Type: |
Residential Detached Single Family |
| Home Style: |
Bungalow |
| Year Built: |
1958 |
| Total Floor Area: |
1,276 sq. ft. |
| Brokerage: |
Greater Calgary Real Estate |
| Construction Type: |
Brick,Vinyl Siding,Wood Frame
|
| Front Exposure: |
NE
|
|
|
|
|
|
| Exterior: |
|
| Exterior: |
Brick, Vinyl Siding, Wood Frame |
| Construction: |
Brick,Vinyl Siding,Wood Frame |
| Frontage: |
13.18M 43`3" |
| Front Exposure: |
NE |
| Roof: |
Asphalt Shingle |
|
|
|
|
|
|
|
|
|
|
| Rooms: |
|
| Total Bedrooms: |
6
(Bedrooms Above: 3)
|
| Bathrooms: |
Full: 2
/ Half: 0
|
| Rooms Above: |
6 |
| Ensuite: |
No
|
| Parking Plan Type: |
Alley Access,Concrete Driveway,Double Garage Detached,Front Drive,Garage Door Opener,Garage Faces Front,Garage Faces Rear,Oversized,See Remarks,Single Garage Attached
|
| Garage: |
1
|
|
|
|
|
|
| Additional Info: |
|
| Heating: |
Forced Air, Natural Gas |
| Basement: |
Full |
| Basement Type: |
Full |
| Floor Finish: |
Carpet, Ceramic Tile, Cork, Hardwood |
| Fireplace Details: |
For Sale |
| Parking: |
Alley Access, Concrete Driveway, Double Garage Detached, Front Drive, Garage Door Opener, Garage Faces Front, Garage Faces Rear, Oversized, See Remarks, Single Garage Attached |
| Total Parking: |
4
|
| Restrictions: |
Contact for Restrictions |
| Heating Type: |
Forced Air,Natural Gas
|
| Heating Fuel: |
Forced Air,Natural Gas
|
| # of Finished Fireplaces: |
1
|
| Restrictions: |
None Known
|
|
|
|
|
|
|
|
|
|
|
|
|
|
|
|
 |
Contact Mike MacLean -
Suite 202 5403 Crowchild Trail NW, Calgary, Alberta, T3B 4Z1
|
|
|
|
|
|
|
|
|
|
The data included in this display is deemed to be reliable, but is not guaranteed to be accurate by the Calgary Real Estate Board.
|
|
|
|
|
The data included on this website is deemed to be reliable, but is not guaranteed to be accurate by the Calgary Real Estate Board.
MLS®, Multiple Listing Service®, and the associated logos are all registered certification marks owned by CREA and are used to identify real estate services provided by brokers and salespersons who are members of CREA. The trademarks REALTOR®, REALTORS® and the REALTOR® logo are controlled by The Canadian Real Estate Association (CREA) and identify real estate professionals who are members of CREA. Used under license.
| |