|
Descriptions:
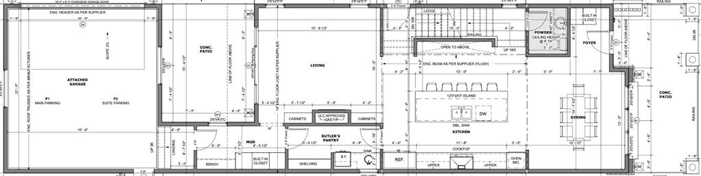
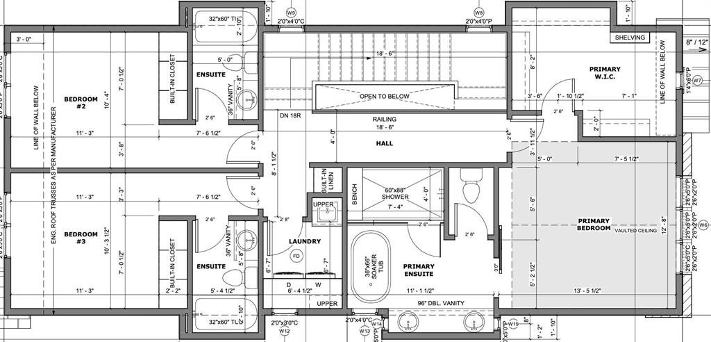
An extraordinary pre-sale opportunity, welcome to 112 7 Ave NW, a stunning custom-built residence, crafted by Sage Group Developments. This home blends modern design, comfort, and functionality across three thoughtfully designed levels. Offering 3,350 sq. ft. of living space, this 4-bedroom, 4.5-bathroom home delivers exceptional craftsmanship and elegant style in every detail. From the outside, the striking red-and-black exterior paired with oversized windows creates a bold, contemporary curb appeal while inviting natural light throughout the interior. The small front porch provides a welcoming entryway, while the rear of the property features an attached two-car garage and an open space perfect for a back porch or patio, ideal for entertaining and family gatherings. Inside, the main floor impresses with soaring 10-foot ceilings and a bright, open-concept design. A welcoming foyer with a built-in closet leads into the dining room at the front of the home. The heart of this level is the chef’s kitchen, complete with a generous island, walk-through pantry, and seamless access to the mudroom and garage. The spacious living room, centered around a cozy gas fireplace, provides the perfect spot to relax or host guests. Just a few steps up from the main level, a conveniently located powder room completes this floor. The upper level offers 9-foot ceilings and three bedrooms, each designed with privacy and comfort in mind. Two secondary bedrooms feature built-in closets and private four-piece ensuites, while the laundry room is smartly placed nearby for convenience. At the end of the hall, the primary suite is a true retreat, with a generous walk-in closet and a spa-inspired five-piece ensuite featuring dual sinks, a soaker tub, and a glass-enclosed shower. The fully finished basement expands the living space even further with 9-foot ceilings, a spacious rec room with wet bar, and a dedicated gym behind a modern glass wall. A large bedroom with a walk-in closet and a full bathroom make this level perfect for guests, extended family, or an additional private retreat. A unique halfway walkout to the backyard ensures easy outdoor access from this floor. With its thoughtful floor plan, high-end finishes, and prime location, 112 7 Ave NW is more than just a house—it’s a forever home designed for both luxury living and everyday comfort.
|
|
|
|
| Site Influences: |
| Back Lane |
|
| Legal Description: |
| ACCESS Legal Description |
|
| Location & Listing Info: |
|
|
| Neighbourhood: |
Crescent Heights
|
|
| Lot Size: |
0.08
sq.ft.
|
| Lot Shape: |
Back Lane |
|
|
|
|
|
| Property Info: |
|
| Property Type: |
Residential Detached Single Family |
| Home Style: |
2 Storey |
| Year Built: |
2025 |
| Total Floor Area: |
2,299 sq. ft. |
| Brokerage: |
The Real Estate District |
| Construction Type: |
See Remarks
|
| Front Exposure: |
N
|
|
|
|
|
|
| Exterior: |
|
| Exterior: |
See Remarks |
| Construction: |
See Remarks |
| Frontage: |
9.14M 30`0" |
| Front Exposure: |
N |
| Roof: |
Asphalt Shingle |
|
|
|
|
|
|
|
|
|
|
| Rooms: |
|
| Total Bedrooms: |
4
(Bedrooms Above: 3)
|
| Bathrooms: |
Full: 4
/ Half: 1
|
| Rooms Above: |
6 |
| Ensuite: |
Yes
|
| Parking Plan Type: |
Double Garage Attached
|
| Garage: |
1
|
|
|
|
|
|
| Additional Info: |
|
| Heating: |
Forced Air |
| Basement: |
Full |
| Basement Type: |
Full |
| Floor Finish: |
Carpet, Ceramic Tile, Hardwood |
| Fireplace Details: |
For Sale |
| Parking: |
Double Garage Attached |
| Total Parking: |
4
|
| Restrictions: |
Contact for Restrictions |
| Heating Type: |
Forced Air
|
| Heating Fuel: |
Forced Air
|
| # of Finished Fireplaces: |
1
|
| Restrictions: |
None Known
|
|
|
|
|
|
|
|
|
|
|
|
|
|
|
|
 |
Contact Mike MacLean -
Suite 202 5403 Crowchild Trail NW, Calgary, Alberta, T3B 4Z1
|
|
|
|
|
|
|
|
|
|
The data included in this display is deemed to be reliable, but is not guaranteed to be accurate by the Calgary Real Estate Board.
|
|
|
|
|
The data included on this website is deemed to be reliable, but is not guaranteed to be accurate by the Calgary Real Estate Board.
MLS®, Multiple Listing Service®, and the associated logos are all registered certification marks owned by CREA and are used to identify real estate services provided by brokers and salespersons who are members of CREA. The trademarks REALTOR®, REALTORS® and the REALTOR® logo are controlled by The Canadian Real Estate Association (CREA) and identify real estate professionals who are members of CREA. Used under license.
|